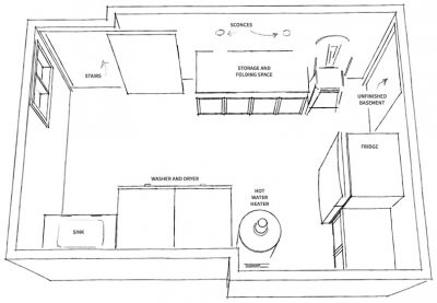
Laundry Room Overview 2